家族だけで住むには広すぎる自宅を建て替えたい
家族だけで住むには広すぎると思っていたので、老朽化に伴い賃貸併用住宅への建て替えを計画。
災害に強い建物を探している中でヒノキやグループをみつけ、WITHに決定されました。
-
施工後
-
施工前
区画図
-
-
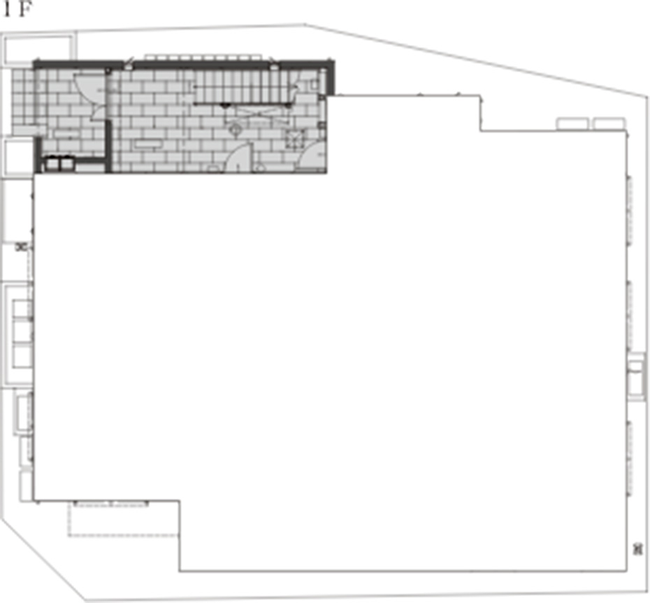
1 F
オーナー様宅は、1階と2階を縦に使用することで、入居者との上下階の音の不安を解消。さらにオートロックの玄関を賃貸スペースの中心に配置することで隣同士の音の問題にも配慮しています。
-
-
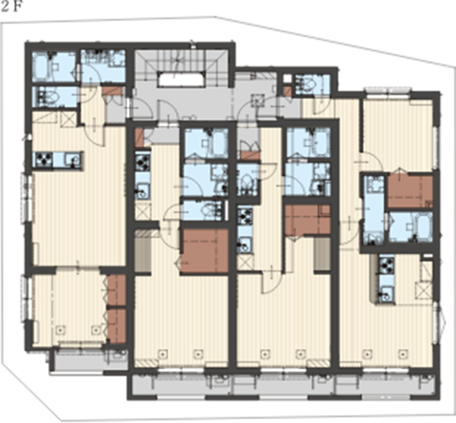
2 F
賃貸部分では玄関ドアを開けても部屋の中が見えないようにするなど、入居者のプライバシーにも配慮しています。
-
-
その他の工夫
道路からみて一番奥にオーナー様宅、手前に賃貸スペースとすることで、オーナー様の生活動線に入居者が干渉しないようにプライバシーを確保。オーナー様宅の3階には太陽光発電システムを採用し、余った電気を売電しています。
(掲載日:2025.10.21)
| 所在地 | 神奈川県横浜市保土ケ谷区 | 階数 | 2階建て/自宅部分:1階+2階 |
| 延床面積 | 253.66㎡㎡ | 賃貸戸数 | 4戸(1LDK) |
| 施工前 | 住居 | 家賃 | - |
| 竣工日 | 2023年3月 |
| 所在地 | 神奈川県横浜市保土ケ谷区 |
|---|---|
| 延床面積 | 253.66㎡㎡ |
| 施工前 | 住居 |
| 施工費 | - |
| 階数 | 2階建て/自宅部分:1階+2階 |
| 賃貸戸数 | 4戸(1LDK) |
| 家賃 | - |
| 竣工日 | 2023年3月 |

